Lokal handlowo-usługowy Brodnica, ul. Długa
Brodnica Pokaż na mapie ›
Ogłoszenie archiwalne Wygasło: Piątek, 09 Styczeń, 2026 06:52
3 300 zł
Szczegóły ogłoszenia
- Kategoria: Biura i lokale / Do wynajęcia
- Przeznaczenie:Inne przeznaczenie
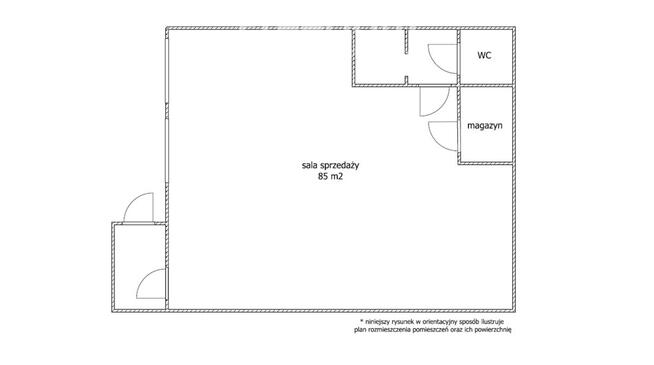
- Powierzchnia:85 m2
- Sprzedaż:Pośrednik
- Cena: 3 300 zł
Opis oferty
Do wynajęcia przestronny lokal użytkowy 85 m² – Brodnica, ul.Długa – z własnym parkingiem!
Oferuję do wynajęcia lokal użytkowy o powierzchni 85 m²,
położony w Brodnicy przy ul. Długiej, w bardzo dogodnej lokalizacji
– blisko trasy wyjazdowej na Warszawę oraz obwodnicy Brodnicy, ok.
400 metrów od ronda.
Duży atut – własny parking na 4–5 samochodów, co zapewnia
łatwy dostęp dla klientów i pracowników.
Opis lokalu:
Powierzchnia całkowita: 85 m²
sala sprzedaży: ok. 77 m²
zaplecze (szatnia, magazynek, WC i łazienka): ok. 8 m² jasne,
ustawne pomieszczenia,
zaplecze socjalne i sanitarne,
niezależne wejście,
dostępne wszystkie media (prąd, woda, ogrzewanie gazowe).
Atuty:
doskonała lokalizacja przy ruchliwej ulicy, w pobliżu obwodnicy
Brodnicy, trasy na Warszawę i ul. Podgórnej, łatwy dojazd z każdej
części miasta,
własny parking na 5 samochodów przed budynkiem.spokojna,
rozwijająca się okolica,dogodny dojazd i widoczność z ulicy,
możliwość adaptacji wnętrza pod różne rodzaje działalności
(biuro, gabinet, sklep, punkt usługowy, magazyn).
Udogodnienia i wyposażenie:
ogrzewanie w cenie najmu,
woda i prąd płatne wg zużycia,
duże okna witrynowe – doskonała ekspozycja i widoczność lokalu,
możliwość podłączenia światłowodu,
łatwy dostęp dla klientów,
Idealny pod: sklep, biuro, gabinet, salon kosmetyczny, punkt usługowy
lub inną działalność handlowo-usługową.
Szczegóły oferty: FREEDOM Iława, ul. Kopernika 5, Katarzyna
Jakubowska, tel. 572 - pokaż numer telefonu -
Cena najmu: 3300 zł / miesiąc + opłaty eksploatacyjne
Przy wynajmie nieruchomości należy uwzględnić koszty
okołotransakcyjne.
"Właścicielem ogłoszenia wraz z jego elementami jest Freedom
Nieruchomości Sp. z o.o. lub podmioty współpracujące. Wszelkie
prawa zastrzeżone. Kopiowanie, rozpowszechnianie oraz korzystanie z
niniejszych materiałów w jakikolwiek inny sposób wykraczający poza
dozwolony użytek określony przepisami ustawy z 4 lutego 1994 r. o
prawie autorskim i prawach pokrewnych (Dz. U. 1994, nr 24 poz. 83 z
późn. zm.) bez pisemnej zgody Freedom Nieruchomości Sp. z o.o. lub
podmiotów współpracujących jest zabronione i może stanowić
podstawę odpowiedzialności cywilnej oraz karnej.
Ponadto niniejsze materiały stanowią tajemnicę przedsiębiorstwa
Freedom Nieruchomości Sp. z o.o. lub podmiotów współpracujących w
rozumieniu ustawy z dnia 16 kwietnia 1993 r. o zwalczaniu nieuczciwej
konkurencji (Dz. U. z 2003 r., Nr 153, poz. 1503 z późn. zm.).
Niniejsze ogłoszenie nie stanowi oferty w rozumieniu Kodeksu
Cywilnego, lecz ma charakter informacyjny."
Sprawdź zainteresowanie tym ogłoszeniem
Wyświetlenia
Data dodania
Ostatnio widziany
Obserwujących
Wysłane zapytania
Odsłony telefonu
Powiadom o podobnych ogłoszeniach
Lokalizacja: Brodnica
Kategoria: Nieruchomości » Biura i lokale » Do wynajęcia
Cena: od 3000 zł do 4000 zł Powierzchnia : od 72 m2 do 98 m2
Chcę otrzymywać powiadomienia o nowych ofertach
To ogłoszenie jest archiwalne i może być nieaktualne.
Katarzyna Jakubowska
Konto firmowe
Na Lento.pl od 02 sty 2024
Odpowiada szybko
Strona użytkownika
- Wypromuj ogłoszenie
- Zgłoś naruszenie
- Drukuj ulotkę
- Edytuj/usuń ogłoszenie
- Udostępnij ogłoszenie
- Dodaj na Facebook











